Edificio Mulltifamiliar Los Huancas

Edificio Mulltifamiliar Los Huancas

Edificio Multifamiliar en Surco

Edificio residencial de 4 pisos + azotea con un total de 6 departamentos en Monterrico, distrito de Surco en Lima, Perú.


Información técnica

El edificio "Los Huancas" está proyectado en un terreno de 380 m2 y el proyecto se desarrolla en 1,460 m2 donde todos los departamentos tienen áreas confortables para los habitantes con espacios muy cómodos según el planteamiento del proyecto.

  • Proyecto: Edificio “Los Huancas”
  • Propietario: P&M Inmobiliari
  • Ubicación: Calle Los Huancas #168 Urb. Santa Constanza de Monterrico, Surco
  • Arquitectura: Arq. Luis Rivera Marquina - Jorge Deza
  • Obra: Edificio 01 sótano, 4 pisos + azotea de 6 departamentos
  • Inicio de Obras: Julio del 2015
  • Area del Terreno: 380.00 m2
  • Area construida: 1460.88 m2
  • Financiamiento terreno: Recursos Propios
  • Financiamiento proyecto: BCP

Venta de Departamentos

Precios Venta Departamentos Edificio Mulltifamiliar Los Huancas
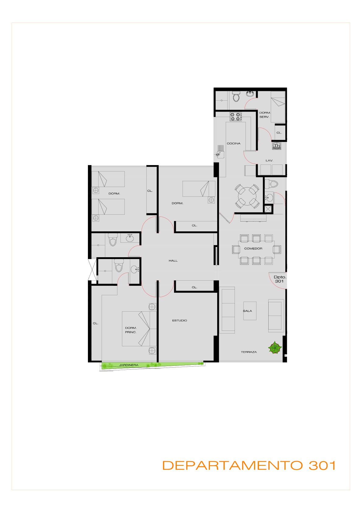
Planos de Venta Departamentos Edificio Mulltifamiliar Los Huancas
Planos de Venta Departamentos Edificio Mulltifamiliar Los Huancas
Planos de Venta Departamentos Edificio Mulltifamiliar Los Huancas
Foto Obra Edificio Mulltifamiliar Los Huancas